| 物件名 | ヴェルト湯島 | ||
|---|---|---|---|
| 交通アクセス | 湯島駅より徒歩1分 | ||
| 建物構造 | RC | ||
| 契約期間 | 1年 | ||
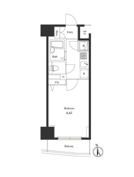
| 物件種別 | マンション | 築年月 | 2004年08月 |
| 現況 | 居住中 | 更新料 | 新賃料の1ヶ月分 |
| 引渡 | 5月中旬予定 | 主要採光面 | 南 |
| 駐輪場 | 空要確認 | バイク置場 | - |
| 駐車場 | なし | ||
| 損害保険 | 要加入 | ||
| 保証会社利用 | 要加入 | 鍵交換費用 | 22,000円(税込) |
| 保証料 | 初回:総賃料の55% | ||
| 設備・条件 | 南向き , ペット相談 , 保証人不要 , システムキッチン , ガスコンロ , コンロ二口以上 , バス・トイレ別 , シャワートイレ , エアコン , CATV , BSアンテナ , 光ファイバー , オートロック , TVドアホン , 宅配ボックス , エレベーター , 室内洗濯機置場 , フローリング , バルコニー , 都市ガス , タイル貼り | ||
| 備考 | 分譲タイプ インターネット無料(アルテリアネット) パウダールーム 独立洗面化粧台 24時間換気システム クローゼット 収納スペース シューズボックス ピッキング対応キー セコムマグネセラ活水器 敷地内ごみ置場 24時間安心サポート料:22,000円/2年 室内抗菌処理代:17,600円 契約事務手数料:11,000円 賃料口座振替手数料:550円/月 退去時ルームクリーニング費用負担あり ペット飼育時:敷金1ヶ月追加/大型犬・中型犬は敷金2ヶ月追加 ※1回目、2回目の契約更新時に賃料5%の改定あり。更新料は1回のみ。※契約時保証金償却 | ||
| お問い合わせ番号 | 00354 | ||
- ※写真や間取り図面が現況と相違する場合は現況を優先させていただきます。
- ※掲載している物件が万が一ご成約の場合はご了承願います。
- ※駐車場、バイク置場、駐輪場の正確な空き状況についてはお問い合わせ頂けますでしょうか。
- ※共同住宅の場合はこちらのお部屋以外にも空室がある場合がございます。
弊社専門スタッフが迅速にご対応致しますので、お電話かメールにてお気軽にお問い合わせください。 - ※仲介手数料の割引率が変更になっている場合もございますので、お問い合わせの際にご確認いただけますよう
お願い申し上げます。 - ※法人契約にて社宅代行業者を利用する場合には、仲介手数料の割引が適用されない場合がございます。
ヴェルト湯島の空室一覧
最新の空室状況について知りたい方は、お気軽にお問い合わせください。


















































東京メトロ千代田線「湯島」駅より徒歩1分のペット可分譲賃貸マンションです。インターネット無料!駅近の生活環境良好なお部屋になります。
ペットは小型犬・猫あわせて2匹まで飼育のご相談いただけます。
こちらのお部屋は仲介手数料無料にてご紹介中ですので、詳細についてはお気軽にお問い合わせください。