| 物件名 | Park Axis 御茶ノ水ステージ (パークアクシス御茶ノ水ステージ ) | ||
|---|---|---|---|
| 交通アクセス | 御茶ノ水駅より徒歩8分 | ||
| 建物構造 | RC | ||
| 契約期間 | 2年 | ||
| 物件種別 | マンション | 築年月 | 2006年02月 |
| 現況 | 居住中 | 更新料 | 新賃料の1ヶ月分 |
| 引渡 | 4月下旬予定 | 主要採光面 | 南 |
| 駐輪場 | 有 1住居1台 | バイク置場 | - |
| 駐車場 | 空要確認 | ||
| 損害保険 | 要加入 | ||
| 保証会社利用 | 要加入 | 鍵交換費用 | 16,500円(税込) |
| 保証料 | 初回:総賃料の50% 年額:9,600円 | ||
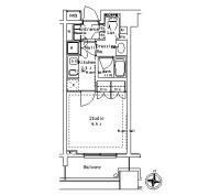
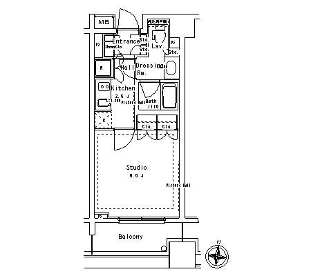
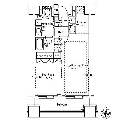
| 設備・条件 | 南向き , 2階以上の物件 , ペット相談 , 楽器相談 , 2人入居可 , 保証人不要 , システムキッチン , ガスコンロ , コンロ二口以上 , バス・トイレ別 , 追い焚き , シャワートイレ , 浴室乾燥機 , エアコン , 床暖房 , CATV , CSアンテナ , BSアンテナ , 光ファイバー , オートロック , 宅配ボックス , エレベーター , 室内洗濯機置場 , フローリング , 駐車場あり , 駐輪場あり , バルコニー , 都市ガス , タイル貼り | ||
| 備考 | 独立洗面化粧台 エアコン クローゼット 収納スペース シューズボックス ディンプルキー 防犯カメラ 敷地内ごみ置場 アップライトピアノ相談可 口座振替事務手数料:220円/月 駐輪場初回ステッカー代:2,200円(税込) 退去時ルームクリーニング費用負担あり ペット飼育時:敷金1ヶ月追加 | ||
| お問い合わせ番号 | 00770 | ||
- ※写真や間取り図面が現況と相違する場合は現況を優先させていただきます。
- ※掲載している物件が万が一ご成約の場合はご了承願います。
- ※駐車場、バイク置場、駐輪場の正確な空き状況についてはお問い合わせ頂けますでしょうか。
- ※共同住宅の場合はこちらのお部屋以外にも空室がある場合がございます。
弊社専門スタッフが迅速にご対応致しますので、お電話かメールにてお気軽にお問い合わせください。 - ※仲介手数料の割引率が変更になっている場合もございますので、お問い合わせの際にご確認いただけますよう
お願い申し上げます。 - ※法人契約にて社宅代行業者を利用する場合には、仲介手数料の割引が適用されない場合がございます。


















































東京メトロ銀座線「末広町」駅より徒歩6分のペット可賃貸マンションです。アクセス・セキュリティーに優れた充実設備のお部屋になります。
ペットは小型犬2匹まで飼育のご相談いただけます。
こちらのお部屋は仲介手数料無料にてご紹介中ですので、詳細についてはお気軽にお問い合わせください。