| 物件名 | HJクラウンⅡ | ||
|---|---|---|---|
| 交通アクセス | 外苑前駅より徒歩10分 | ||
| 建物構造 | RC | ||
| 契約期間 | 2年 | ||
| 物件種別 | マンション | 築年月 | 2026年03月 |
| 現況 | 空室 | 更新料 | 新賃料の1ヶ月分 |
| 引渡 | 即入居可 | 主要採光面 | 南西 |
| 駐輪場 | なし | バイク置場 | なし |
| 駐車場 | なし | ||
| 損害保険 | 20,000円/2年 | ||
| 保証会社利用 | 要加入 | 鍵交換費用 | - |
| 保証料 | 初回:総賃料の50% 月額:550円 | ||
| 設備・条件 | 2階以上の物件 , ペット相談 , 2人入居可 , 即入居可 , 保証人不要 , システムキッチン , ガスコンロ , コンロ二口以上 , バス・トイレ別 , 追い焚き , シャワートイレ , 浴室乾燥機 , エアコン , CSアンテナ , BSアンテナ , 光ファイバー , オートロック , TVドアホン , 宅配ボックス , 室内洗濯機置場 , フローリング , 都市ガス , タイル貼り | ||
| 備考 | インターネット無料 2面採光 オールフローリング エアコン全室完備 パウダールーム 24時間換気システム クローゼット シューズボックス ディンプルキー ダブルロックドア 防犯カメラ 敷地内ごみ置場 ルームクリーニング費用負担あり 短期解約違約金あり(1年未満解約は賃料1ヶ月相当額) Meiho Plus24要加入:1,320円(税込)/月 ペット飼育時:敷金2ヶ月追加/1ヶ月償却 | ||
| お問い合わせ番号 | 04894 | ||
- ※写真や間取り図面が現況と相違する場合は現況を優先させていただきます。
- ※掲載している物件が万が一ご成約の場合はご了承願います。
- ※駐車場、バイク置場、駐輪場の正確な空き状況についてはお問い合わせ頂けますでしょうか。
- ※共同住宅の場合はこちらのお部屋以外にも空室がある場合がございます。
弊社専門スタッフが迅速にご対応致しますので、お電話かメールにてお気軽にお問い合わせください。 - ※仲介手数料の割引率が変更になっている場合もございますので、お問い合わせの際にご確認いただけますよう
お願い申し上げます。 - ※法人契約にて社宅代行業者を利用する場合には、仲介手数料の割引が適用されない場合がございます。

























































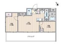
東京メトロ銀座線「外苑前」駅より徒歩10分のペット可新築賃貸マンションです。生活に便利な立地で、住環境が充実したお部屋になります。
ペットは小型犬3匹まで飼育のご相談いただけます。
こちらのお部屋は仲介手数料無料にてご紹介中ですので、詳細についてはお気軽にお問い合わせください。