| 物件名 | GENOVIA 川崎Ⅲ (ジェノヴィア川崎Ⅲ ) | ||
|---|---|---|---|
| 交通アクセス | 川崎駅より徒歩9分 | ||
| 建物構造 | RC | ||
| 契約期間 | 2年 | ||
| 物件種別 | マンション | 築年月 | 2022年02月 |
| 現況 | 居住中 | 更新料 | 新賃料の1ヶ月分 |
| 引渡 | 5月下旬予定 | 主要採光面 | 南西 |
| 駐輪場 | 有 無料 | バイク置場 | 空要確認 |
| 駐車場 | なし | ||
| 損害保険 | 要加入 | ||
| 保証会社利用 | 要加入 | 鍵交換費用 | 55,000円(税込)/任意 |
| 保証料 | 詳細はお問い合わせください。 | ||
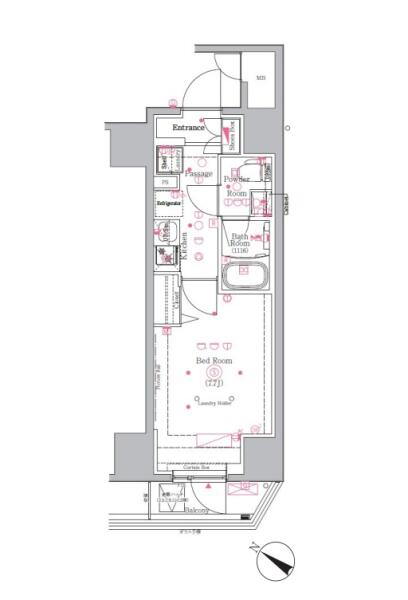
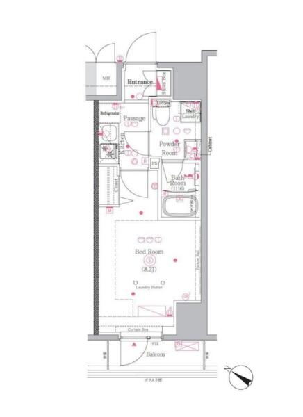
| 設備・条件 | 2階以上の物件 , ペット相談 , 2人入居可 , 保証人不要 , システムキッチン , ガスコンロ , コンロ二口以上 , バス・トイレ別 , シャワートイレ , 浴室乾燥機 , エアコン , CSアンテナ , BSアンテナ , 光ファイバー , オートロック , TVドアホン , 宅配ボックス , エレベーター , 室内洗濯機置場 , フローリング , 駐輪場あり , バルコニー , 都市ガス , タイル貼り | ||
| 備考 | 分譲タイプ インターネット無料(Wi-Fi) パウダールーム 独立洗面化粧台 24時間換気システム クローゼット 収納スペース シューズボックス マルチメディアコンセント ディンプルキー ダブルロックドア 防犯カメラ 敷地内ごみ置場 RBI安心サポート(月額保証委託料+家財保険+家賃引落手数料+mamorocca):2,700円/月(税込) 事務手数料:11,000円 消臭抗菌サービス:11,000円 退去時ルームクリーニング費用負担あり ペット飼育時:敷金積増なし(多頭飼い・大型犬の場合、基本敷金1ヶ月※頭数により変動あり) ※短期解約違約金:1年未満の解約で総賃料1ヶ月分 | ||
| お問い合わせ番号 | 04591 | ||
- ※写真や間取り図面が現況と相違する場合は現況を優先させていただきます。
- ※掲載している物件が万が一ご成約の場合はご了承願います。
- ※駐車場、バイク置場、駐輪場の正確な空き状況についてはお問い合わせ頂けますでしょうか。
- ※共同住宅の場合はこちらのお部屋以外にも空室がある場合がございます。
弊社専門スタッフが迅速にご対応致しますので、お電話かメールにてお気軽にお問い合わせください。 - ※仲介手数料の割引率が変更になっている場合もございますので、お問い合わせの際にご確認いただけますよう
お願い申し上げます。 - ※法人契約にて社宅代行業者を利用する場合には、仲介手数料の割引が適用されない場合がございます。
ジェノヴィア川崎Ⅲの空室一覧
「ジェノヴィア川崎Ⅲ」と同じ沿線、同じ種別の物件一覧
- ・JR京浜東北線の賃貸物件一覧へ > 川崎駅の賃貸物件一覧へ
- ・大型犬可の賃貸物件一覧へ > 大型犬可のJR京浜東北線の賃貸物件一覧へ > 大型犬可の川崎駅の賃貸物件一覧へ
- ・中型犬可の賃貸物件一覧へ > 中型犬可のJR京浜東北線の賃貸物件一覧へ > 中型犬可の川崎駅の賃貸物件一覧へ
- ・小型犬可の賃貸物件一覧へ > 小型犬可のJR京浜東北線の賃貸物件一覧へ > 小型犬可の川崎駅の賃貸物件一覧へ
- ・ネコ可の賃貸物件一覧へ > ネコ可のJR京浜東北線の賃貸物件一覧へ > ネコ可の川崎駅の賃貸物件一覧へ
- ・多頭飼い可の賃貸物件一覧へ > 多頭飼い可のJR京浜東北線の賃貸物件一覧へ > 多頭飼い可の川崎駅の賃貸物件一覧へ




















































JR京浜東北線「川崎」駅より徒歩9分のペット可賃貸マンションです。旧東海道に面した利便性の高いお部屋になります。
ペットは大型犬・中型犬・小型犬・猫の多頭飼育が可能です。3匹以上もご相談ください。
こちらのお部屋は仲介手数料無料にてご紹介中ですので、詳細についてはお気軽にお問い合わせください。