| 物件名 | Kolet 町田 | ||
|---|---|---|---|
| 交通アクセス | 町田駅より徒歩11分 | ||
| 建物構造 | 木造 | ||
| 契約期間 | 2年 | ||
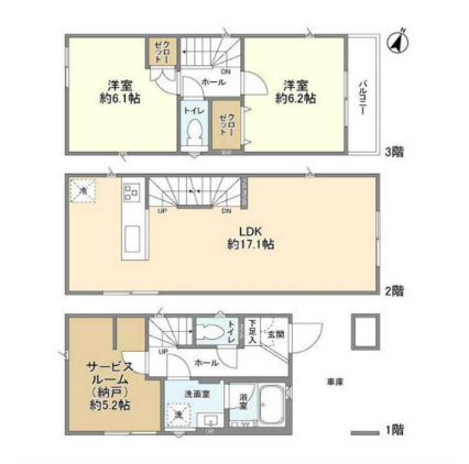
| 物件種別 | 一戸建て | 築年月 | 2024年10月 |
| 現況 | 居住中 | 更新料 | 新賃料の1ヶ月分 |
| 引渡 | 6月中旬予定 | 主要採光面 | 南 |
| 駐輪場 | スペースあり | バイク置場 | スペースあり |
| 駐車場 | 付き | ||
| 損害保険 | 16,550円/2年 | ||
| 保証会社利用 | 要加入 | 鍵交換費用 | - |
| 保証料 | 詳細はお問い合わせください。 | ||
| 設備・条件 | ペット相談 , 楽器相談 , 2人入居可 , 保証人不要 , システムキッチン , ガスコンロ , コンロ二口以上 , カウンターキッチン , バス・トイレ別 , 追い焚き , シャワートイレ , 浴室乾燥機 , エアコン , ウォークインクローゼット , TVドアホン , 宅配ボックス , 室内洗濯機置場 , フローリング , 駐車場あり , バイク置き場あり , 駐輪場あり , バルコニー , 都市ガス | ||
| 備考 | スマートホーム導入済み 駐車場付き バルコニー オールフローリング 全室エアコン 食洗器 浄水器 パウダールーム 独立洗面化粧台 24時間換気システム クローゼット 収納スペース シューズボックス ペアガラス ディンプルキー ダブルロックドア EV車用充電設備 退去時ルームクリーニング費用負担あり ペット飼育時:1匹につき敷金1ヶ月追加/大型犬・中型犬は2ヶ月追加 | ||
| お問い合わせ番号 | 03850 | ||
- ※写真や間取り図面が現況と相違する場合は現況を優先させていただきます。
- ※掲載している物件が万が一ご成約の場合はご了承願います。
- ※駐車場、バイク置場、駐輪場の正確な空き状況についてはお問い合わせ頂けますでしょうか。
- ※共同住宅の場合はこちらのお部屋以外にも空室がある場合がございます。
弊社専門スタッフが迅速にご対応致しますので、お電話かメールにてお気軽にお問い合わせください。 - ※仲介手数料の割引率が変更になっている場合もございますので、お問い合わせの際にご確認いただけますよう
お願い申し上げます。 - ※法人契約にて社宅代行業者を利用する場合には、仲介手数料の割引が適用されない場合がございます。
Kolet 町田の空室一覧
最新の空室状況について知りたい方は、お気軽にお問い合わせください。



















































JR横浜線「町田」駅より徒歩13分のペット可貸戸建です。敷地内駐車場あり!スマートホーム導入済みのお部屋になります。
ペットは大型犬は1匹まで。中型犬・小型犬・猫は2匹まで飼育のご相談いただけます。
こちらのお部屋は仲介手数料無料にてご紹介中ですので、詳細についてはお気軽にお問い合わせください。