| 物件名 | コンフォリア・リヴ八坂富士見 | ||
|---|---|---|---|
| 交通アクセス | 八坂駅より徒歩8分 | ||
| 建物構造 | RC | ||
| 契約期間 | 2年 | ||
| 物件種別 | マンション | 築年月 | 2025年06月 |
| 現況 | 空室 | 更新料 | 新賃料の1ヶ月分 |
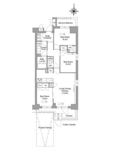
| 引渡 | 即入居可 | 主要採光面 | 南 |
| 駐輪場 | 有 | バイク置場 | 空要確認 |
| 駐車場 | 付き | ||
| 損害保険 | 16,550円/2年 | ||
| 保証会社利用 | 要加入 | 鍵交換費用 | - |
| 保証料 | 詳細はお問い合わせください。 | ||
| 設備・条件 | 南向き , 1階の物件 , 角部屋 , ペット相談 , 2人入居可 , 即入居可 , 保証人不要 , システムキッチン , ガスコンロ , コンロ二口以上 , バス・トイレ別 , 追い焚き , シャワートイレ , 浴室乾燥機 , エアコン , 床暖房 , CSアンテナ , BSアンテナ , 光ファイバー , オートロック , TVドアホン , 宅配ボックス , エレベーター , 室内洗濯機置場 , フローリング , 専用庭 , 駐車場あり , バイク置き場あり , 駐輪場あり , バルコニー , 都市ガス , タイル貼り | ||
| 備考 | ペット共生型マンション ドッグバス・トリミングルーム ペットサービス有(エチケットケア) ペットの足腰に優しいクッションフロア採用 消臭坊傷クロス 床暖房 食器洗浄機 全居室エアコン パウダールーム 独立洗面化粧台 24時間換気システム クローゼット 収納スペース シューズボックス ディンプルキー ダブルロックドア 防犯カメラ 敷地内ごみ置場 退去時ルームクリーニング費用負担あり ペット飼育時:敷金2ヶ月追加 ※告知事項あり | ||
| お問い合わせ番号 | 03582 | ||
- ※写真や間取り図面が現況と相違する場合は現況を優先させていただきます。
- ※掲載している物件が万が一ご成約の場合はご了承願います。
- ※駐車場、バイク置場、駐輪場の正確な空き状況についてはお問い合わせ頂けますでしょうか。
- ※共同住宅の場合はこちらのお部屋以外にも空室がある場合がございます。
弊社専門スタッフが迅速にご対応致しますので、お電話かメールにてお気軽にお問い合わせください。 - ※仲介手数料の割引率が変更になっている場合もございますので、お問い合わせの際にご確認いただけますよう
お願い申し上げます。 - ※法人契約にて社宅代行業者を利用する場合には、仲介手数料の割引が適用されない場合がございます。
コンフォリア・リヴ八坂富士見の空室一覧
「コンフォリア・リヴ八坂富士見」と同じ沿線、同じ種別の物件一覧
- ・西武多摩湖線の賃貸物件一覧へ > 八坂駅の賃貸物件一覧へ
- ・大型犬可の賃貸物件一覧へ > 大型犬可の西武多摩湖線の賃貸物件一覧へ > 大型犬可の八坂駅の賃貸物件一覧へ
- ・中型犬可の賃貸物件一覧へ > 中型犬可の西武多摩湖線の賃貸物件一覧へ > 中型犬可の八坂駅の賃貸物件一覧へ
- ・小型犬可の賃貸物件一覧へ > 小型犬可の西武多摩湖線の賃貸物件一覧へ > 小型犬可の八坂駅の賃貸物件一覧へ
- ・ネコ可の賃貸物件一覧へ > ネコ可の西武多摩湖線の賃貸物件一覧へ > ネコ可の八坂駅の賃貸物件一覧へ
- ・多頭飼い可の賃貸物件一覧へ > 多頭飼い可の西武多摩湖線の賃貸物件一覧へ > 多頭飼い可の八坂駅の賃貸物件一覧へ






















































西武多摩湖線「八坂」駅より徒歩8分のペット共生型賃貸マンションです。ペットバス・トリミングスペース利用可能なお部屋になります。
ペットは大型犬・中型犬・小型犬・猫あわせて3匹まで飼育のご相談いただけます。
こちらのお部屋は仲介手数料無料にてご紹介中ですので、詳細についてはお気軽にお問い合わせください。