| 物件名 | GranDuo 田園調布6 (グランデュオ田園調布6 ) | ||
|---|---|---|---|
| 交通アクセス | 御嶽山駅より徒歩5分 | ||
| 建物構造 | RC | ||
| 契約期間 | 2年 | ||
| 物件種別 | マンション | 築年月 | 2025年03月 |
| 現況 | 居住中 | 更新料 | 新賃料の1.275ヶ月分 |
| 引渡 | 5月下旬予定 | 主要採光面 | 南 |
| 駐輪場 | 空要確認 | バイク置場 | 空要確認 5,500円/月 |
| 駐車場 | 空なし | ||
| 損害保険 | 18,000円~/2年 | ||
| 保証会社利用 | 要加入 | 鍵交換費用 | 24,200円(税込) |
| 保証料 | 初回:総賃料の50% 年額:12,000円 | ||
| 設備・条件 | 南向き , 2階以上の物件 , 角部屋 , ペット相談 , 2人入居可 , 保証人不要 , システムキッチン , ガスコンロ , コンロ二口以上 , バス・トイレ別 , 追い焚き , シャワートイレ , 浴室乾燥機 , エアコン , CSアンテナ , BSアンテナ , 光ファイバー , オートロック , TVドアホン , 宅配ボックス , エレベーター , 室内洗濯機置場 , フローリング , バイク置き場あり , 駐輪場あり , バルコニー , 都市ガス , タイル貼り | ||
| 備考 | Wi-Fi無料 エアコン2台 パウダールーム 独立洗面化粧台 室内物干金物 24時間換気システム クローゼット 収納スペース シューズボックス 人感センサー付玄関照明 ディンプルキー ダブルロックドア 防犯カメラ 契約時室内クリーニング費用負担あり 契約事務手数料:22,000円(税込) バイク駐輪条件:更新料0.55カ月/更新事務手数料11,000円 ペット飼育時:1匹につき敷金1ヶ月追加(合計体重15㎏以内) | ||
| お問い合わせ番号 | 03505 | ||
- ※写真や間取り図面が現況と相違する場合は現況を優先させていただきます。
- ※掲載している物件が万が一ご成約の場合はご了承願います。
- ※駐車場、バイク置場、駐輪場の正確な空き状況についてはお問い合わせ頂けますでしょうか。
- ※共同住宅の場合はこちらのお部屋以外にも空室がある場合がございます。
弊社専門スタッフが迅速にご対応致しますので、お電話かメールにてお気軽にお問い合わせください。 - ※仲介手数料の割引率が変更になっている場合もございますので、お問い合わせの際にご確認いただけますよう
お願い申し上げます。 - ※法人契約にて社宅代行業者を利用する場合には、仲介手数料の割引が適用されない場合がございます。
グランデュオ田園調布6の空室一覧
| 号室 | 賃料 | 管理費 / 共益費 | 間取り | 面積 | 個別情報 |
|---|---|---|---|---|---|
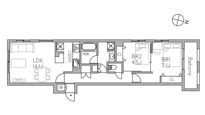
| 204号室募集中 | 23万円 | 20,000円 | 2LDK | 58.83m² | 詳細 |
最新の空室状況について知りたい方は、お気軽にお問い合わせください。





















































東急池上線「御嶽山」駅より徒歩5分のペット可賃貸マンションです。多摩川緑地もお散歩圏内のお部屋になります。
ペットは中型犬・小型犬・猫あわせて2匹(合計体重15㎏以内)まで飼育のご相談いただけます。
こちらのお部屋は仲介手数料無料にてご紹介中ですので、詳細についてはお気軽にお問い合わせください。