| 物件名 | THE TOKYO TOWERS MIDTOWER | ||
|---|---|---|---|
| 交通アクセス | 勝どき駅より徒歩6分 | ||
| 建物構造 | RC | ||
| 契約期間 | 2年 | ||
| 物件種別 | マンション | 築年月 | 2008年01月 |
| 現況 | 空室 | 更新料 | 新賃料の1ヶ月分 |
| 引渡 | 即入居可 | 主要採光面 | 北西 |
| 駐輪場 | 有 1住居2台まで | バイク置場 | 空なし |
| 駐車場 | 有 36,960円~/月 | ||
| 損害保険 | 要加入 | ||
| 保証会社利用 | 要加入 | 鍵交換費用 | なし |
| 保証料 | 初回:家賃総額の50% 更新料10,000円/年 | ||
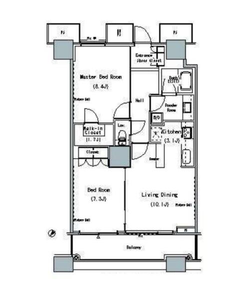
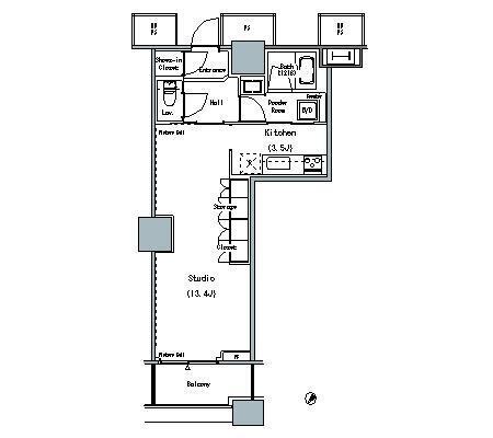
| 設備・条件 | 2階以上の物件 , ペット相談 , 楽器相談 , 2人入居可 , 保証人不要 , システムキッチン , IHコンロ , コンロ二口以上 , バス・トイレ別 , 追い焚き , 浴室乾燥機 , エアコン , CATV , CSアンテナ , BSアンテナ , 光ファイバー , オートロック , 宅配ボックス , エレベーター , 室内洗濯機置場 , フローリング , 駐車場あり , バイク置き場あり , 駐輪場あり , バルコニー , タイル貼り , オール電化 | ||
| 備考 | フリーレント2ヵ月 共用施設(コンシェルジュ・フィットネスルーム・プール・シアタールーム・キッズルーム・ゲストルーム・ミーティングルーム) オールフローリング パウダールーム 独立洗面化粧台 グリル付きIHクッキングヒーター 収納スペース クローゼット シューズインクローゼット ピクチャーレール ディンプルキー ダブルロックドア 防犯カメラ 各階ごみ置場 アップライトピアノ相談可 退去時ルームクリーニング費用負担あり 駐車場契約時:敷金2ヵ月 ペット飼育時:敷金1ヶ月追加(ペットクラブ要加入 犬の飼育時は1,650円・猫の飼育時は495円/月が必要になります。) | ||
| お問い合わせ番号 | 01705 | ||
- ※写真や間取り図面が現況と相違する場合は現況を優先させていただきます。
- ※掲載している物件が万が一ご成約の場合はご了承願います。
- ※駐車場、バイク置場、駐輪場の正確な空き状況についてはお問い合わせ頂けますでしょうか。
- ※共同住宅の場合はこちらのお部屋以外にも空室がある場合がございます。
弊社専門スタッフが迅速にご対応致しますので、お電話かメールにてお気軽にお問い合わせください。 - ※仲介手数料の割引率が変更になっている場合もございますので、お問い合わせの際にご確認いただけますよう
お願い申し上げます。 - ※法人契約にて社宅代行業者を利用する場合には、仲介手数料の割引が適用されない場合がございます。
THE TOKYO TOWERS MIDTOWERの空室一覧
最新の空室状況について知りたい方は、お気軽にお問い合わせください。

















































都営大江戸線「勝どき」駅より徒歩6分のペット可賃貸マンションです。勝どきエリアの生活環境良好なお部屋になります。
ただいまフリーレント2ヶ月キャンペーン中!
ペットは小型犬・猫あわせて2匹まで飼育のご相談いただけます。
こちらのお部屋は仲介手数料無料にてご紹介中ですので、詳細についてはお気軽にお問い合わせください。