| 物件名 | パークハビオ渋谷本町レジデンス | ||
|---|---|---|---|
| 交通アクセス | 西新宿五丁目駅より徒歩7分 | ||
| 建物構造 | RC | ||
| 契約期間 | 2年 | ||
| 物件種別 | マンション | 築年月 | 2011年05月 |
| 現況 | 居住中 | 更新料 | 新賃料の1ヶ月分 |
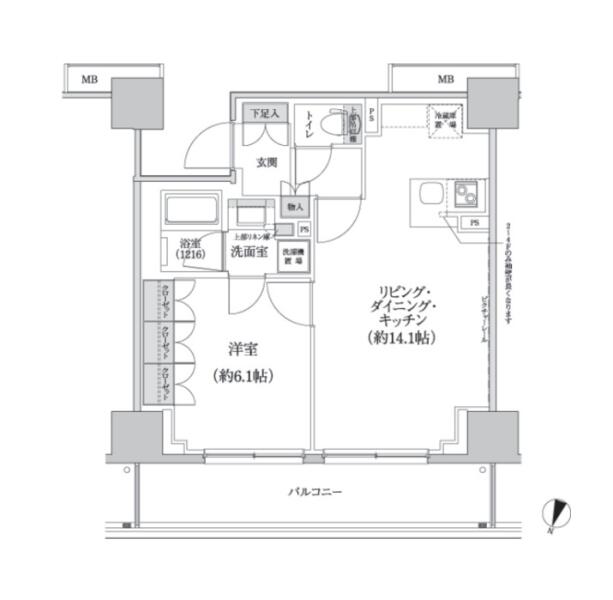
| 引渡 | 4月下旬予定 | 主要採光面 | 南 |
| 駐輪場 | - | バイク置場 | - |
| 駐車場 | - | ||
| 損害保険 | 32,000円/2年 | ||
| 保証会社利用 | 要加入 | 鍵交換費用 | 33,000円(税込) |
| 保証料 | 初回:総賃料の50% 月額:総賃料の1% | ||
| 設備・条件 | 南向き , 2階以上の物件 , 角部屋 , ペット相談 , 楽器相談 , 2人入居可 , 保証人不要 , システムキッチン , IHコンロ , コンロ二口以上 , カウンターキッチン , バス・トイレ別 , 追い焚き , シャワートイレ , 浴室乾燥機 , エアコン , 床暖房 , CATV , BSアンテナ , 光ファイバー , オートロック , TVドアホン , 宅配ボックス , エレベーター , 室内洗濯機置場 , フローリング , バルコニー , 都市ガス , タイル貼り | ||
| 備考 | フロントサービス 24時間コールセンター付 共用施設(ゲストルーム・シアタールーム・スポーツジム) オールフローリング 独立洗面化粧台 24時間換気システム クローゼット 収納スペース シューズボックス ピクチャーレール ペアガラス ディンプルキー 防犯カメラ 敷地内ゴミ置場 M-REALプレミアムクラブ会員費:19,800円/2年 退去時室内クリーニング費用負担あり ペット飼育時:敷金1ヶ月追加 | ||
| お問い合わせ番号 | 01428 | ||
- ※写真や間取り図面が現況と相違する場合は現況を優先させていただきます。
- ※掲載している物件が万が一ご成約の場合はご了承願います。
- ※駐車場、バイク置場、駐輪場の正確な空き状況についてはお問い合わせ頂けますでしょうか。
- ※共同住宅の場合はこちらのお部屋以外にも空室がある場合がございます。
弊社専門スタッフが迅速にご対応致しますので、お電話かメールにてお気軽にお問い合わせください。 - ※仲介手数料の割引率が変更になっている場合もございますので、お問い合わせの際にご確認いただけますよう
お願い申し上げます。 - ※法人契約にて社宅代行業者を利用する場合には、仲介手数料の割引が適用されない場合がございます。
パークハビオ渋谷本町レジデンスの空室一覧
最新の空室状況について知りたい方は、お気軽にお問い合わせください。






















































都営大江戸線「西新宿五丁目」駅より徒歩7分のペット可賃貸マンションです。シアタールームなど共用施設が充実した住環境良好なお部屋になります。
ペットは小型犬・猫あわせて2匹まで飼育のご相談いただけます。
こちらのお部屋は仲介手数料無料にてご紹介中ですので、詳細についてはお気軽にお問い合わせください。