| 物件名 | Park Axis 滝野川 (パークアクシス滝野川 ) | ||
|---|---|---|---|
| 交通アクセス | 西巣鴨駅より徒歩10分 | ||
| 建物構造 | RC | ||
| 契約期間 | 2年 | ||
| 物件種別 | マンション | 築年月 | 2007年04月 |
| 現況 | 空室 | 更新料 | 新賃料の1ヶ月分 |
| 引渡 | 6月中旬予定 | 主要採光面 | 南 |
| 駐輪場 | 有 1住居1台 | バイク置場 | - |
| 駐車場 | なし | ||
| 損害保険 | 要加入 | ||
| 保証会社利用 | 要加入 | 鍵交換費用 | 16,500円(税込) |
| 保証料 | 初回:総賃料の50% 年額:9,600円 | ||
| 設備・条件 | 南向き , 2階以上の物件 , ペット相談 , 楽器相談 , 2人入居可 , 保証人不要 , システムキッチン , ガスコンロ , コンロ二口以上 , バス・トイレ別 , 追い焚き , シャワートイレ , 浴室乾燥機 , エアコン , ウォークインクローゼット , CATV , CSアンテナ , BSアンテナ , 光ファイバー , オートロック , TVドアホン , 宅配ボックス , エレベーター , 室内洗濯機置場 , フローリング , 駐輪場あり , バルコニー , 都市ガス , タイル貼り | ||
| 備考 | 24時間換気システム 独立洗面化粧台 洗濯機 乾燥機 クローゼット 収納スペース シューズボックス ディンプルキー 防犯カメラ 敷地内ごみ置場 アップライトピアノ相談可 口座振替事務手数料:220円/月 駐輪場ステッカー発行手数料:2,200円(税込) 退去時ルームクリーニング費用負担あり ペット飼育時:敷金1ヶ月追加 | ||
| お問い合わせ番号 | 00837 | ||
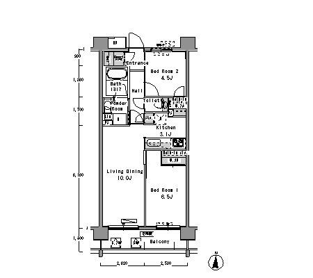
- ※写真や間取り図面が現況と相違する場合は現況を優先させていただきます。
- ※掲載している物件が万が一ご成約の場合はご了承願います。
- ※駐車場、バイク置場、駐輪場の正確な空き状況についてはお問い合わせ頂けますでしょうか。
- ※共同住宅の場合はこちらのお部屋以外にも空室がある場合がございます。
弊社専門スタッフが迅速にご対応致しますので、お電話かメールにてお気軽にお問い合わせください。 - ※仲介手数料の割引率が変更になっている場合もございますので、お問い合わせの際にご確認いただけますよう
お願い申し上げます。 - ※法人契約にて社宅代行業者を利用する場合には、仲介手数料の割引が適用されない場合がございます。
パークアクシス滝野川の空室一覧
最新の空室状況について知りたい方は、お気軽にお問い合わせください。

























































都営三田線「西巣鴨」駅より徒歩10分のペット可賃貸マンションです。住環境良好!充実設備のセキュリティに優れたお部屋になります。
ペットは小型犬は2匹まで。猫は1匹まで飼育のご相談いただけます。
近くには北区中央公園があり愛犬とのお散歩にも便利な環境です!
こちらのお部屋は仲介手数料無料にてご紹介中ですので、詳細についてはお気軽にお問い合わせください。