| 物件名 | サンコートWAN | ||
|---|---|---|---|
| 交通アクセス | 中板橋駅より徒歩4分 | ||
| 建物構造 | RC | ||
| 契約期間 | 2年 | ||
| 物件種別 | マンション | 築年月 | 2005年03月 |
| 現況 | 空室 | 更新料 | 新賃料の0.5ヶ月分 |
| 引渡 | 即入居可 | 主要採光面 | - |
| 駐輪場 | 有 | バイク置場 | - |
| 駐車場 | 空なし | ||
| 損害保険 | 要加入 | ||
| 保証会社利用 | 要加入 | 鍵交換費用 | 22,000円~(税込) |
| 保証料 | 初回:総賃料の60% 年額:10,000円 | ||
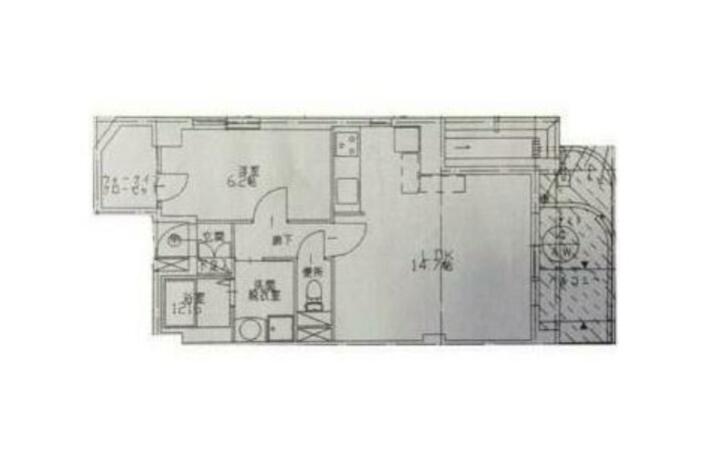
| 設備・条件 | 2階以上の物件 , 角部屋 , ペット相談 , 2人入居可 , 即入居可 , 保証人不要 , システムキッチン , ガスコンロ , コンロ二口以上 , バス・トイレ別 , 追い焚き , シャンプードレッサー , エアコン , ウォークインクローゼット , CATV , オートロック , TVドアホン , エレベーター , 室内洗濯機置場 , フローリング , 駐輪場あり , バルコニー , 都市ガス , タイル貼り | ||
| 備考 | ペット共生型マンション ペット用足洗い場・うんちダスト(共用部) ペット用ドア(各室) オールフローリング エアコン2台 フルオートバス パウダールーム 独立洗面化粧台 クローゼット 収納スペース シューズボックス ディンプルキー 敷地内ごみ置場 退去時ルームクリーニング費用負担あり ペット飼育時:敷金の増額なし(2匹以上の場合は1匹につき賃料1,000円増) | ||
| お問い合わせ番号 | 00064 | ||
- ※写真や間取り図面が現況と相違する場合は現況を優先させていただきます。
- ※掲載している物件が万が一ご成約の場合はご了承願います。
- ※駐車場、バイク置場、駐輪場の正確な空き状況についてはお問い合わせ頂けますでしょうか。
- ※共同住宅の場合はこちらのお部屋以外にも空室がある場合がございます。
弊社専門スタッフが迅速にご対応致しますので、お電話かメールにてお気軽にお問い合わせください。 - ※仲介手数料の割引率が変更になっている場合もございますので、お問い合わせの際にご確認いただけますよう
お願い申し上げます。 - ※法人契約にて社宅代行業者を利用する場合には、仲介手数料の割引が適用されない場合がございます。
サンコートWANの空室一覧
最新の空室状況について知りたい方は、お気軽にお問い合わせください。
「サンコートWAN」と同じ沿線、同じ種別の物件一覧
- ・東武東上線の賃貸物件一覧へ > 中板橋駅の賃貸物件一覧へ
- ・大型犬可の賃貸物件一覧へ > 大型犬可の東武東上線の賃貸物件一覧へ > 大型犬可の中板橋駅の賃貸物件一覧へ
- ・中型犬可の賃貸物件一覧へ > 中型犬可の東武東上線の賃貸物件一覧へ > 中型犬可の中板橋駅の賃貸物件一覧へ
- ・小型犬可の賃貸物件一覧へ > 小型犬可の東武東上線の賃貸物件一覧へ > 小型犬可の中板橋駅の賃貸物件一覧へ
- ・ネコ可の賃貸物件一覧へ > ネコ可の東武東上線の賃貸物件一覧へ > ネコ可の中板橋駅の賃貸物件一覧へ
- ・多頭飼い可の賃貸物件一覧へ > 多頭飼い可の東武東上線の賃貸物件一覧へ > 多頭飼い可の中板橋駅の賃貸物件一覧へ



























































東武東上線「中板橋」駅より徒歩4分の免震構造ペット共生型マンションです。
リードフックなどペット用設備が充実したお部屋になります。
ペットは大型犬・中型犬・小型犬・猫の飼育相談が可能です。多頭飼育はお問い合わせください。